Passive fire protection is a critical aspect of building design, and recent fire events have underscored its importance. By understanding the main concerns, implementing effective passive fire protection measures, and adhering to current regulations, we can ensure the safety of buildings and their occupants. Additionally, careful consideration of curtain wall design and spandrel zones is crucial in preventing fire spread. Architects, engineers, and builders need to prioritise passive fire protection in their designs to create safer buildings for everyone.

The Dubai Address Downtown Hotel fire (2015) and the Grenfell Tower fire in London (2017), two of the most emblematic events from the last decade for global visibility impact the first and for the number of losses in lives the second, are stark reminders of the importance of fire-safe cladding, compartmentalisation, and fire-resistant materials. These fires have led to a renewed focus on passive fire protection, emphasising the need for effective building design and materials to prevent fire spread.
Compartmentalisation, fire stopping and sealing, material selection, and structural integrity are crucial aspects of passive fire safety. By dividing buildings into fire-tight compartments, preventing fire spread through gaps and joints, selecting fire-resistant materials, and ensuring structural integrity, we can significantly reduce the risk of fire spread.
Passive fire protection of main structures is critical, and measures include using fire-resistant materials, applying protective coatings or sprays, and designing structures to withstand fire exposure. Current regulations in different countries set minimum requirements for fire safety; despite that, there is still a wide gap to cover in regulations in understanding the real magnitude of the issue, especially in the curtain wall construction, which is widely used for wrapping buildings due to their aesthetic appeal, and they are lightweight combined with the higher performances currently reachable in terms of energy saving and green economy.
Curtain walls and spandrel zones require special attention, as they can be vulnerable to fire spread. Testing and certification, material selection, jointing and sealing, and ensuring proper insulation are essential to maintain fire resistance.
The Fire Safety Of Curtain Walls: A Critical Discourse
As we gaze upon the sleek and modern façades of contemporary buildings, it’s easy to overlook the intricate details that ensure the safety of their occupants. One such crucial aspect is the fire safety of curtain walls – a topic that warrants rigorous examination. In this discussion, we’ll delve into the complexities of curtain wall fire safety, navigating the nuances of testing and certification, material selection, jointing and sealing, spandrel zones, insulation, fire-stopping, and maintenance and inspection.

-
Testing And Certifications: The Bedrock Of Fire Safety
The importance of testing and certification cannot be overstated. It’s the foundation upon which fire safety is built. Without rigorous testing, we’re left with a curtain wall system that may appear aesthetically pleasing but potentially harbours hidden dangers. Certification bodies must simulate various fire scenarios to assess the curtain wall’s performance, providing a safety net for occupants.
-
Material selection: A delicate balancing act
The selection of materials for curtain wall construction is a precarious balancing act. On the one hand, we desire materials that provide structural integrity and aesthetic appeal; on the other, we must prioritise fire resistance. The dichotomy between form and function is palpable. Fire-resistant materials like fire-resistant glass, ceramic or stone veneers, and fire-treated wood or aluminium frames are the obvious choices, but what about the less conspicuous materials like insulation and sealants? Their impact on fire safety should not be underestimated.
-
Jointing And Sealing: The Achilles’ Heel Of Curtain Walls
Jointing and sealing are often the most vulnerable aspects of curtain wall construction. Gaps and joints provide a conduit for fire to spread, compromising the integrity of the entire system. The importance of proper jointing and sealing cannot be overstated. Fire-resistant sealants and gaskets should be employed to prevent fire from penetrating the curtain wall, and joints must be meticulously aligned and sealed to prevent fire spread.
-
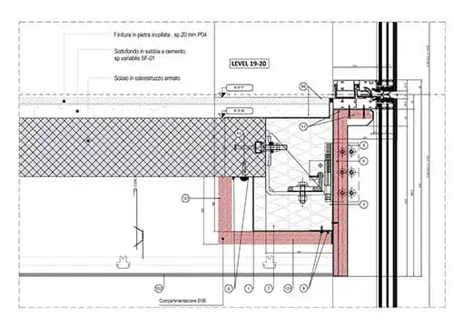
Sprandel Zones: The Hidden Vulnerability
Spandrel zones, nestled between floor slabs and curtain walls, are a frequently overlooked vulnerability. These areas require special attention, as they can provide a conduit for fire spread. Fire-resistant materials and fire-stopping measures must be employed to protect these areas, ensuring that fire cannot spread through the curtain wall.
-
Insulation: A Hidden Hazard
Insulation, often an afterthought in curtain wall construction, can pose a significant fire hazard if not properly selected and installed. Fire-resistant insulation materials like mineral wool or ceramic blankets are essential, and proper installation and sealing are critical to prevent fire spread.
-
Fire-Stopping: The Final Line Of Defence

Fire-stopping measures are the last bastion of defence against fire spread. Fire-stopping is a critical component of passive fire protection, and it refers to the measures taken to prevent fire from spreading through gaps and joints in the curtain wall. These gaps and joints can be vulnerable to fire spread, as they can provide a pathway for flames and hot gases to travel through the building. This final line of defence is crucial in preventing the fire from spreading through the curtain wall.
Fire-stopping measures typically involve the use of fire-resistant materials, such as fire-resistant caulk or spray, to seal joints and fire-stopping elements to fill the gaps between the façade and floor slabs. These materials are designed to maintain their integrity even when exposed to high temperatures, and they can help to prevent fire from spreading through the curtain wall.
Some common fire-stopping measures include:
- Fire-resistant caulk: This is a type of sealant that is specifically designed to resist fire. It can be used to seal joints in the curtain wall.
- Fire-resistant spray: This is a type of spray that is applied to the curtain wall to provide a fire-resistant barrier. It can be used to seal joints.
- Fire-stopping systems: These are pre-engineered systems that are designed to provide a comprehensive fire-stopping solution. They typically include a combination of fire-resistant materials and other components.
- Penetration seals: These are used to seal joints around penetrations, such as pipes and ducts, that pass through the curtain wall. They can help to prevent fire from spreading through the building by sealing these vulnerable areas.
- Joint seals: These are used to seal joints in the curtain wall.
Overall, fire-stopping measures are a critical component of passive fire protection, and they can help prevent fire from spreading through the curtain wall. By using fire-resistant materials and installing fire-stopping systems, building owners and managers can help protect people and property from the dangers of fire.

Maintenance And Inspection: The Ongoing Vigilance
Regular maintenance and inspection are the unsung heroes of curtain wall fire safety. Curtain walls must be inspected regularly for damage or deterioration, and maintenance tasks like cleaning and repairing sealants must be performed to ensure the curtain wall remains fire-resistant. This ongoing vigilance is essential in ensuring the fire safety of curtain walls.
In conclusion, passive fire protection is a critical aspect of building design, and recent fire events have underscored its importance. By understanding the main concerns, implementing effective passive fire protection measures, and adhering to current regulations, we can ensure the safety of buildings and their occupants. Architects, consultants, and builders must prioritise passive fire protection in their designs to create safer buildings for everyone.
Gallery

